Gau-Odernheimer Gemeinderat beschließt Haushalt und stellt Weichen für die zukünftige Entwicklung
Mit einem umfangreichen Zahlenwerk hatte sich der Gau-Odernheimer Gemeinderat bei seiner ersten Sitzung für 2019 im Rahmen der Haushaltsberatungen zu befassen. So betragen die Erträge des Ergebnishaushaltes 6.051.830 € bei Aufwendungen in Höhe von 5.744.410 €, somit ein Überschuss in Höhe von 307.420 €. Hierbei sind z.B. Aufwendungen für Planungen der Innenentwicklung über 45 T€, Unterhaltung der Gemeindestraßen über 50 T€, Baumpflege über 81 T€ und Unterhaltung des Friedhofes über 18 T€ enthalten. Im Finanzhaushalt stehen Erträgen in Höhe von 5.750.430 € Aufwendungen von 5.288.730 € entgegen. Somit beträgt hier der Überschuss 521.700 €. Geplant sind hier an Investitionen u.a. die Erschließung Vorstadt III für 1,5 Mio € Außengelände Kiga nach dem alten Schloss und die Friedhofsanierung für je 150 T€ und eine Matschschleuse für die Kita Regenbogen für 100 T€. Falls alle Investitionen umgesetzt würden, müsste ein Investitionskredit in Höhe von 337.700 € aufgenommen werden. Da dies aber Erfahrungsgemäß nicht eintritt, ist davon auszugehen, dass dieser Kredit nicht notwendig wird. Die Umlagen (= Abgaben der Ortsgemeinde an Kreis und VG) betragen 2.743.660 €. Um Gau-Odernheim für vorhandene und zukünftige Gewerbetreibende attraktiv zu halten, wird die Gewerbesteuer von 415 auf 395 Punkte gesenkt (entspricht Mindereinnahmen von ca. 18 T€). Alle anderen Steuern und Abgaben bleiben unverändert. Die Überschüsse sollen am Ende des Haushaltsjahres in eine Rücklage für die Petersberghallensanierung überführt werden. Der Haushalt und die Satzung wurden mit 12 Ja-, 5 Nein-Stimmen und 2 Enthaltungen genehmigt.

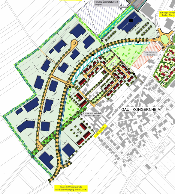
Das Planungsbüro WSW aus Kaiserslautern stellte die Machbarkeitsstudie einer Entlastung der Gau-Köngernheimer Ortslage vor. Hierbei soll eine Entlastungsstraße in nordwestlicher Richtung entstehen. Entlang dieser Straße wäre die Entwicklung eines Gewerbegebietes möglich. Der Gemeinderat beschloss einstimmig (wie auch alle weiteren Beschlüsse) die Selbstbindung dieses Entwicklungszieles und die Fortschreibung im Flächennutzungsplan “Siedlungsentwicklung”.

Für das Gebiet zwischen der Siedlung Pulnoy-Straße und Grüner Weg wurde der Aufstellungsbeschluss für einen Bebauungsplan “Grüner Weg II” gefasst. Für den neuen Kindergarten wurde ein Wartungsvertrag über 4 Jahre für die Lüftungsanlage in Höhe von € 2.972/Jahr an die Fa. Neyses und Radelli aus Appenheim vergeben. Das Planungsbüro Gutschker&Dongus wurde beauftragt für € 3.667 die Planung eines Baumbestattungsfeldes auf dem Gau-Köngernheimer Friedhof durchzuführen. Vertagt wurde die Entscheidung für das Neubaugebiet Vorstadt III die beiden Straßennamen zu vergeben. Die SPD-Fraktion schlug hier aufgrund der Nähe zur Grundschule die Namen der beiden Kinderbuchautoren Erich Kästner und Astrid Lindgren vor. Die CDU-Fraktion erbat sich hier noch Bedenkzeit bis zur nächsten Sitzung. Angenommen wurde der Vorschlag der VG für die Unterhaltung des Bürgerbusses, der demnächst auch Gau-Odernheim anfahren soll, eine Beteiligung von 20% im Anteil der jeweiligen Einwohnerzahlen vorzunehmen. Für Gau-Odernheim wären dies Kosten von ca. 290 €/Jahr. Die Kreisumlage für das Jahr 2019 ist auf € 1.449.389 festgesetzt. In diesem und im nächsten Jahr sollen alle Brücken, die sich innerhalb der VG in Gemeindehand befinden für ca. 1.000 -1.500€ / Brücke überprüft werden. Hier ist im Anschluss mit umfangreichen Sanierungs- und Reparaturarbeiten zu rechnen. Zum Schluss berichtete noch Ortsbürgermeister Heiner Illing vom nichtöffentlichen Teil der letzten Gemeinderatssitzung, dass eine Baugenehmigung für einen Bauantrag am Bahnhof genehmigt wurde, mit den jugendlichen Verursachern des Schadens am Tisch des Weines eine Kombination aus Schadenszahlung und Sozialstunden vereinbart wurde und mit dem Geschichtsverein ein Nutzungsvertrag für das zukünftige Heimatmuseum im ehemaligen Kindergarten abgeschlossen wird.
Heiner Illing
Ortsbürgermeister